Australia

Price Guide $1.9m

1806/7-9 Gibbons Street, Redfern, NSW 2016

# Location

Description

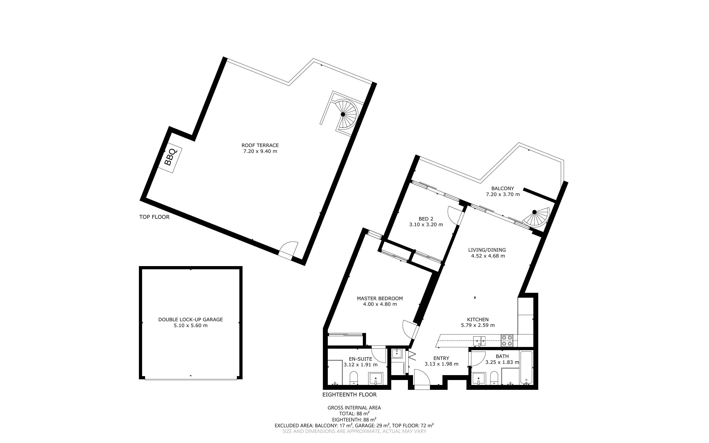
Stylish Penthouse Apartment 187 sqm entire rooftop & 2 car spaces - Fantastic Location!

BY APPOINTMENT - Please contact Trish 0404893883

This penthouse apartment has everything to suit executive lifestyle and create your entertainment at the rooftop! Showered with afternoon sunlight and with panoramic views to the city and beyond from the balcony and private terrace above, there is no better way to live in luxury comfortably. There is an approval to add storage/covered entertainment space at the rooftop as an approved by law, should you like to increase capital value of the property

Features: * Stunning relaxing private rooftop entertainment area with electricity, gas and water connections. * Central reverse air-con and heating

* 187sqm property with 2 lock-up storage/garage * Master bedroom with en-suite bathroom * Two built in wardrobes in the master bedroom * 2 luxurious bathrooms ( separate bath & shower on 2nd bathroom) * 2nd bedroom with access to sun-room / balcony * Fully equipped kitchen * Fridge with automated water drinking filter and ice maker * Washing machine and dryer * Two secure lock-up garages * Spar supermarket, Gibbons cafes, Dental/Medical, Thai restaurant, Japanese, Italian restaurant on the ground floor

* Redfern train station opposite the building. Walking distance to the best train station with many platforms to different suburbs in Sydney. * Currently leased for $1600pw until March 2025

Council Rates $289.00 Quarterly Water Rates $165.00 Quarterly Strata Fees $2,748.00 Quarterly

Disclosure: *Agent interest.

View More #

Floor Plans

Location

  • Contact the agency

    To request an inspection

  • # Call # Email

Trisiana Muljono

Agent Name

Luisa Delana Gabriela Vulagi-Piliae

Agent Name

# Report Listing

Looking for a property?

  • Top listings
  • Investment
  • Development
  • Personal home
  • Price reports
  • Suburb reports

Do you own a property?

  • Place a free listing
  • Services for private advertisers
  • Guide to selling your home
  • Insurance
  • Improve the photos of your listing
  • Value your property for free

Are you a real estate proffesional?

  • Publish your agencies properties
  • Already a client? Log into your account
  • Advertising on Australian Real Estate
  • Australian Real Estate data technology for property insights
  • Real Estate courses